본문 바로가기

아파트경매

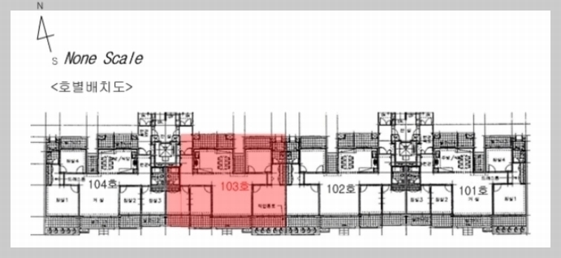
[용인수지아파트경매 수수료최저] 용인시 수지구 신봉동 873, 신봉마을엘지자이아파트경매 118동 103호

https://youtu.be/2L29Y6ufWdg

[용인수지아파트경매 수수료최저] 용인시 수지구 신봉동 873, 신봉마을엘지자이아파트경매 118동 103호

2023타경8753

수원지방법원 본원 매각기일 : 2024.06.03(月) (10:00) 경매 6계(전화:031-210-1266)

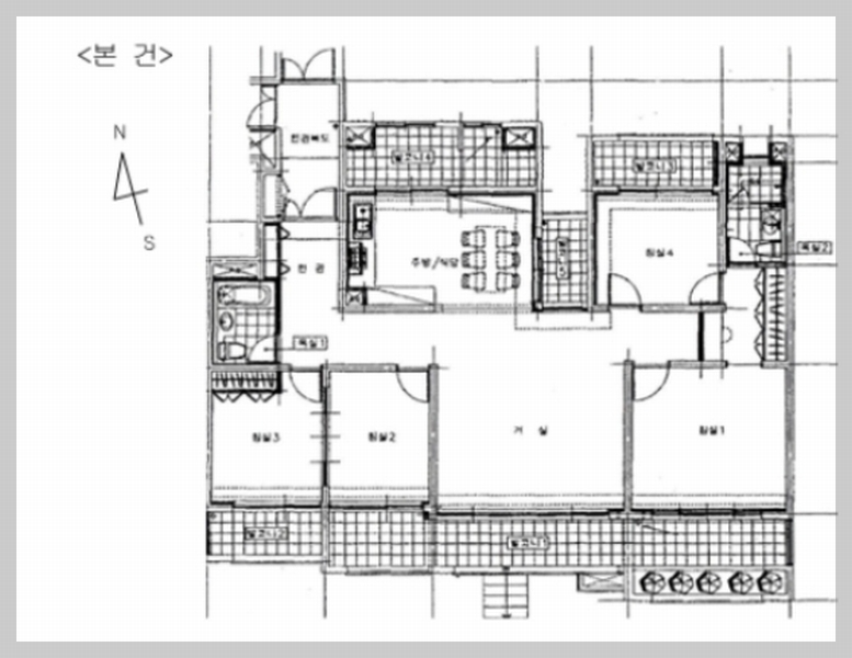
아파트 감 정 가 718,000,000원

1차 2024-04-29 718,000,000원 유찰

2차 2024-06-03 502,600,000원

대 지 권 78.027㎡(23.6평)

최 저 가 (70%) 502,600,000원

건물면적 122.882㎡(37.17평)

보 증 금 (10%) 50,260,000원

 

건물

20층중 1층 04.02.17 122.882㎡(37.17평) 주거용

287,200,000원

 

토지

대지권 142740㎡ 중 78.027㎡

430,800,000원

 

현황위치

* 본건은 경기도 용인시 수지구 신봉동 소재 신일초등학교 남측 인근에 위치하며, 부근은 아파트단지, 학교, 공원, 근린생활시설 등이 혼재하는 지역임.

* 본건까지 차량의 출입이 원할하며 인근에 버스정류장이 소재하여 대중교통 사정은 보통임.

* 남서측 하향 경사지로 일부 등고평탄하게 조성한 대체로 부정형의 토지로서 아파트 건부지임.

* 본건 단지내 도로 양호하며, 외곽 공도와 접함.

 

임차인현황

( 말소기준권리 : 2014.07.10 / 배당요구종기일 : 2023.11.07 )

===== 임차인이 없으며 전부를 소유자가 점유 사용합니다. =====

 

기타사항

☞현장을 방문하여 만난 채무자 겸 소유자라고 하는 정00(남성)에 의하면, 해당 세대에는 자신의 가족이 거주하고 있다고 함. 한편, 전입세대확인서 등에 의하면, 해당 주소에는 채무자 겸 소유자를 세대주로 하는 세대가 전입되어 있음(외국인체류확인서-해당사항 없음).

[용인수지아파트경매 수수료최저] 용인시 수지구 신봉동 873, 신봉엘지자이아파트경매 118동 103호

2023타경8753

수원지방법원 본원 매각기일 : 2024.06.03(月) (10:00) 경매 6계(전화:031-210-1266)